収益物件/マンション 仙台市若林区荒町
所在地
仙台市若林区荒町
1,350万円
84.20m²
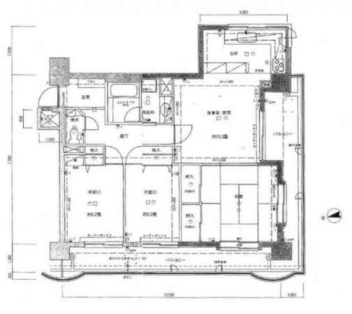
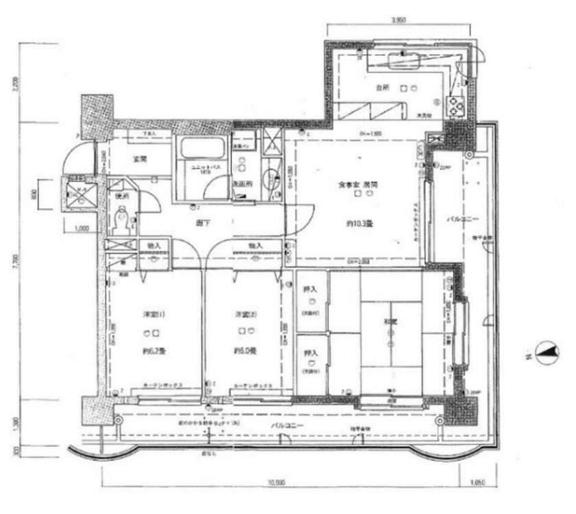
3LDK
◆オーナーチェンジ(賃貸継承)が条件となります♪
◆現在賃貸中です♪
●家賃月額116,000円・表面利回り10.31%
●年間予定賃料収入は、満室時における1年間の予定賃料収入です
物件概要
- 交通
-
仙台南北線 愛宕橋駅 まで 徒歩7分
仙台南北線 五橋駅 まで 徒歩11分
仙台東西線 連坊駅 まで 徒歩13分
- 賃料
- 116,000円
- 収益/年
- 1,392,000円
- 表面利回り
- 10.31%
- 専有面積
- 84.20㎡
- バルコニー面積
- 25.74㎡
- バルコニー方向
- 南
- 所在階/階数
- 5階/7階
- 築年数
-
1991年
(平成3)
11月
築34年 - 建ぺい率
- 容積率
- 土地権利
- 所有権
- 構造および階数
- RC(鉄筋コンクリート) 造 地上7階建
- 総戸数
- 小学校区
- 荒町 (400m)
- 中学校区
- 五橋 (750m)
- 私道負担
- 地目
- 宅地
- 現況
- 賃貸中
- 引渡時期
- 相談
- 駐車場
- 上水道
- 公共
- 下水道
- 公共
- ガス
- 都市ガス
- 都市計画
- 市街化区域
- 管理形態
- 全部委託
- 管理方式
- 管理人日勤
- 用途地域
- 2種住居
- 設備・条件
- システムキッチン、オートロック、角部屋、エレベーター
- 備考
- 取引態様
- 仲介

