マンション ライオンズマンション中倉第2 7階
所在地
仙台市若林区中倉2丁目
2,690万円
72.75m²
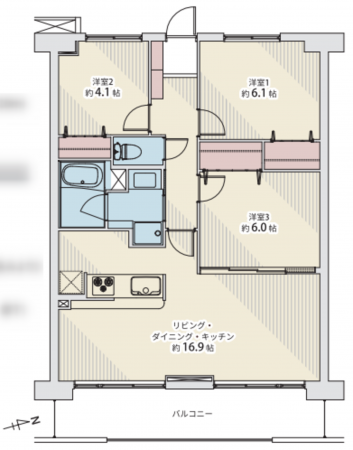
3LDK
◆2026年1月内装リフォーム完了済みで快適な空間♪
◆最上階住戸につき、眺望良好♪
●みやぎ生協南小泉店…約130m(徒歩約2分)
●ファミリーマート若林中倉店…約310m(徒歩約4分)
物件概要
- 交通
-
仙台東西線 卸町駅 まで 徒歩14分
仙台東西線 薬師堂駅 まで 徒歩19分
- 専有面積
- 壁芯 72.75㎡
- バルコニー面積
- 11.25㎡
- バルコニー方向
- 東
- 所在階/階数
- 7階/7階
- 築年数
-
1994年
(平成6)
1月
築32年 - 建ぺい率
- 容積率
- 土地権利
- 所有権
- 構造および階数
- RC(鉄筋コンクリート) 造 地上7階建
- 総戸数
- 76戸
- 小学校区
- 大和 (250m)
- 中学校区
- 蒲町 (1200m)
- 地目
- 現況
- 空
- 引渡時期
- 相談
- 駐車場
- 空無
- 駐車場月額
- 管理形態
- 全部委託
- 管理方式
- 管理人日勤
- 管理会社
- (株)大京アステージ
- 管理費
- 6,200円
- 修繕積立費
- 18,190円
- 上水道
- 公共
- 下水道
- 公共
- ガス
- 都市ガス
- 都市計画
- 市街化区域
- 用途地域
- 1種住居
- 設備・条件
- システムキッチン、カウンターキッチン、食器洗浄乾燥機、シャンプードレッサー、洗浄便座、浴室乾燥機、モニタ付インターホン、オートロック、エレベーター
- 備考
- 取引態様
- 仲介

